REQUEST A TOUR If you would like to see this home without being there in person, select the "Virtual Tour" option and your advisor will contact you to discuss available opportunities.
In-PersonVirtual Tour
Listed by Scott P Varley • KW Platform
$ 900,000
Est. payment /mo
Active
L99 Edie Road Wilton, NY 12866
64 Acres Lot
UPDATED:
Key Details
Property Type Single Family Home
Sub Type Single Family Residence
Listing Status Active
Purchase Type For Sale
MLS Listing ID 202527408
HOA Y/N No
Annual Tax Amount $3,999
Lot Size 64.000 Acres
Acres 64.0
Property Sub-Type Single Family Residence
Source Global MLS
Property Description
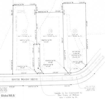
The Wilton Woods subdivision consists of approximately 64 acres of land to the east of Edie Road in the Town of Wilton, within the Saratoga Springs school district. The project is currently approved for 19 residential lots, approximately 1 acre in size each, on two proposed roads coming off of Edie Road, located near where both for sale signs are placed. The large tract of open space located in the center of the site is accepted by the Town of Wilton for ownership and management and consists of partial wetlands. There are currently 5 wells installed near the proposed north road (closer to Rt 50); however, there is availability for town water also. Perk tests have been performed and it has been determined adequate groundwater separation exists for the installation of onsite septic systems. Roads have yet to be built so plans would need to be updated to bring up to todays standards for construction and storm water.
Location
State NY
County Saratoga
Direction Take Exit 16 off I-87, head east on Ballard Rd, then turn left onto Edie Rd. Proposed roads are close to where the For Sale signs are currently placed on 139 Edie Rd.
Building
Lot Description Road Frontage, Private, Wooded
Sewer None
Water None
Schools
School District Saratoga Springs
Others
Tax ID 415600 141.4-1-99
Special Listing Condition Standard

GET MORE INFORMATION
Homes For Sale Quick Search
- The Great Sacandaga Lake Real Estate & Homes For Sale
- Galway Lake Real Estate & Homes For Sale
- Amsterdam Real Estate & Homes For Sale
- Ballston Spa Real Estate & Homes For Sale
- Broadalbin Real Estate & Homes For Sale
- Burnt Hills Real Estate & Homes For Sale
- Fonda-Fultonville Real Estate & Homes For Sale
- Galway Real Estate & Homes For Sale
- Gloversville Real Estate & Homes For Sale
- Johnstown Real Estate & Homes For Sale
- Mayfield Real Estate & Homes For Sale
- Northville Real Estate & Homes For Sale
- Saratoga Springs Real Estate & Homes For Sale
- Scotia-Glenville Real Estate & Homes For Sale
- Galway, NY





